PROPERTIES

モンテリラ目黒 1階

RENT NEW
360°VR内見

CATEGORY :

目黒の隠れ家、すぐに始められる路面店(モンテリラ目黒 1階)

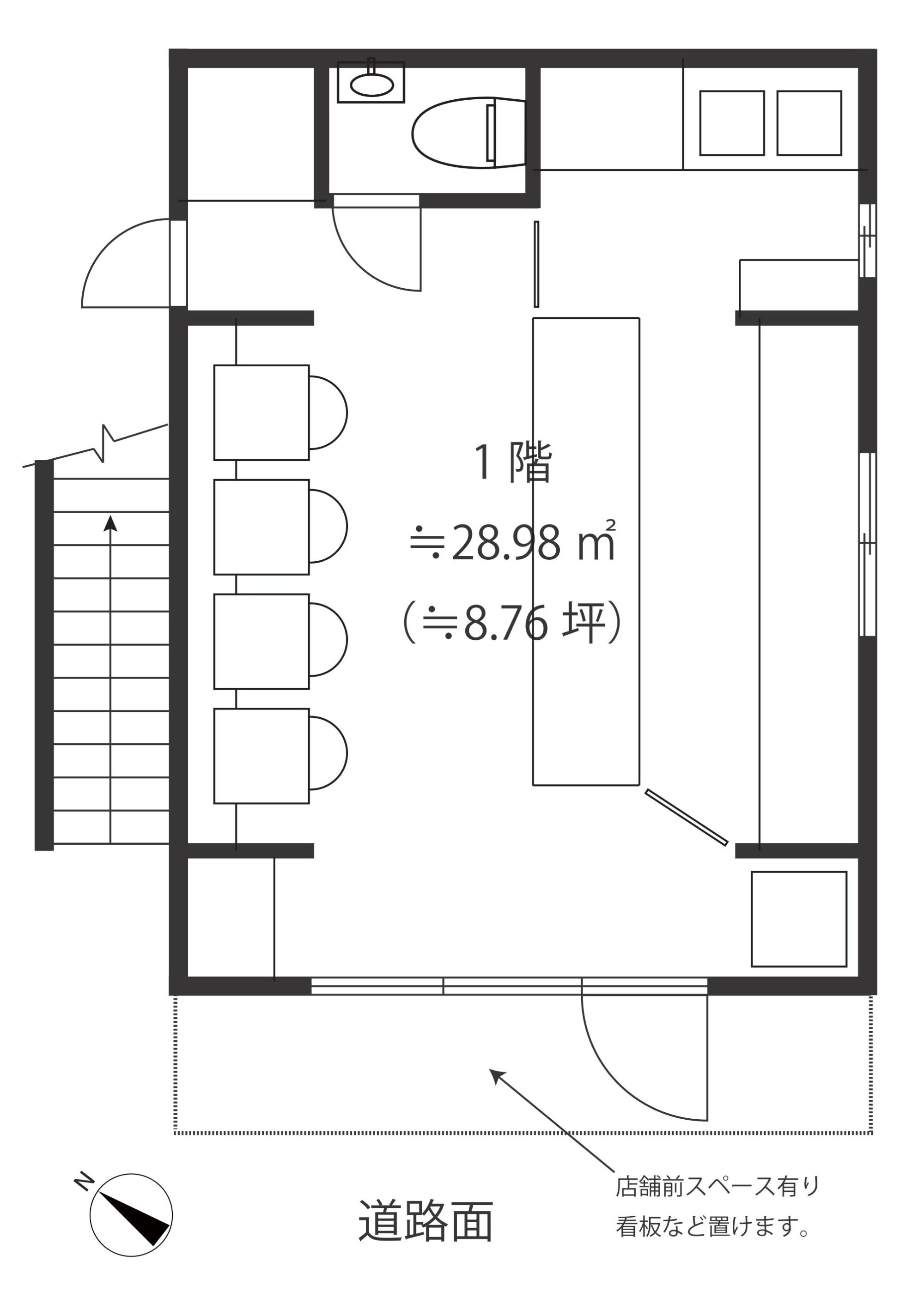
【物件概要】
JR山手線「目黒」駅から徒歩5分。品川区上大崎の落ち着いた住宅街に位置する、1階路面のコンパクトな店舗物件です。以前はブリトー&タコス店として営業しており、現在は居抜きでの引渡しが可能。造作譲渡200万円(税別)にて、厨房設備や内装をそのまま活用でき、初期コストを抑えたスムーズな開業が期待できます。

【おすすめポイント】
■ 駅近×1階路面店
JR山手線「目黒」駅から徒歩5分の立地。人の流れもあり、視認性のある1階路面店です。

■ 居抜きでスピーディーに開業
前テナントの設備や内装を活かせる居抜き物件。開業までの準備期間やコストの軽減が期待できます。

■ 飲食相談可能
臭いや煙の少ない、大きな音の出ない業態であれば相談可能。テイクアウト専門店や物販店舗などにも適しています。

■ 落ち着いた周辺環境
近隣には東京都庭園美術館などの文化施設もあり、穏やかな雰囲気のエリア。周辺住民や来訪者など、落ち着いた客層が見込める立地です。

賃料/
管理費

¥326,700 /
¥ -

専有面積/
間取り

28.98㎡ /
-

所在地

東京都品川区上大崎3-5-18

交通

JR山手線 目黒駅 徒歩5分

白金台駅 徒歩10分

築年月

1999年10月

建物構造

地上 3階

所在階

1階

敷金(保証金)/
礼金

8ヶ月 /
1ヶ月

その他費用

造作譲渡:200万円(税別)
保証会社必須
退去時:保証金の20%償却

駐車場

設備

備考

構造:軽量鉄骨造
貸主インボイス無
5年未満の解約は違約金有(保証金の20%)

契約期間

定期借家5年

再契約相談

入居時期

相談

物件No.

RECOMMEND

おすすめ物件

FOLLOW ME !

SNSで物件情報や白金エリアに関する生活情報をお届けしています。