開放感×デザイン性 22.8畳の贅沢LDK(原宿プラザビル502)
賃貸価格:¥700,000
「北参道駅」徒歩5分/1LDK(71.53㎡)
PROPERTIES
 
                                        2024年2月竣工の築浅ハイグレード賃貸マンション。
洗練された外観デザインに高級感漂う共有部。充実の設備で上質な暮らしを実現します。
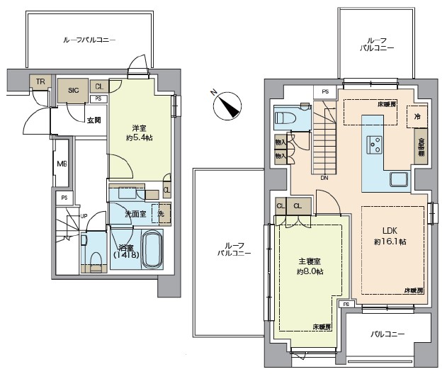
最上階・メゾネットのお部屋です。開放感のあるルーフバルコニーがございます。
賃料/
管理費
¥526,000 / 
¥ - 
専有面積/
間取り
74.06㎡ / 
2LDK
所在地
東京都目黒区中目黒1-1-14
交通
山手線 恵比寿 徒歩9分
東急東横線 代官山 徒歩6分
築年月
2024年2月
建物構造
RC造
地上 6階
所在階
5~6
敷金(保証金)/
礼金
1ヶ月 / 
                                                                    1ヶ月
その他費用
※保証会社:必須。エポス指定
※基本保証料:賃料等30%、
月次保証料800円・更新料0円(引落し手数料0円)
駐車場
※駐車場なし
※駐輪場:1台500円(1住居1台まで) 
 
設備
フローリング | モニタ付インターホン | 宅配BOX | 室内洗濯機置場 | IHクッキングヒーター | 洗面所独立 | 温水洗浄便座 | 浴室乾燥機 | エアコン | 追い焚き | エレベーター | トイレ | オートロック | ガスコンロ付 | バルコニー
備考
※民泊不可・ペット不可・事務所SOHO不可
※玄関横トランクルーム付き:0.70㎡ 
契約期間
普通賃貸借契約2年
入居時期
11月下旬
物件No.
おすすめ物件